








佛山沃欧活动隔断厂是集研发,设计,制造,销售,运输,安装和售后服务为一体,主
要生产活动隔断,活动屏风,酒店隔断,隔断厂,移动屏风,办公高隔间和移动隔墙以
及酒店隔断零配件等的生产厂家,
在全面吸收国外等先进隔断技术的基础上,进行了优化改进和全方位的创新,共取得了
十多项发明专利,其中沃欧活动隔断厂家密封新型材的发明,填补了国内空白。
一,沃欧隔断65型
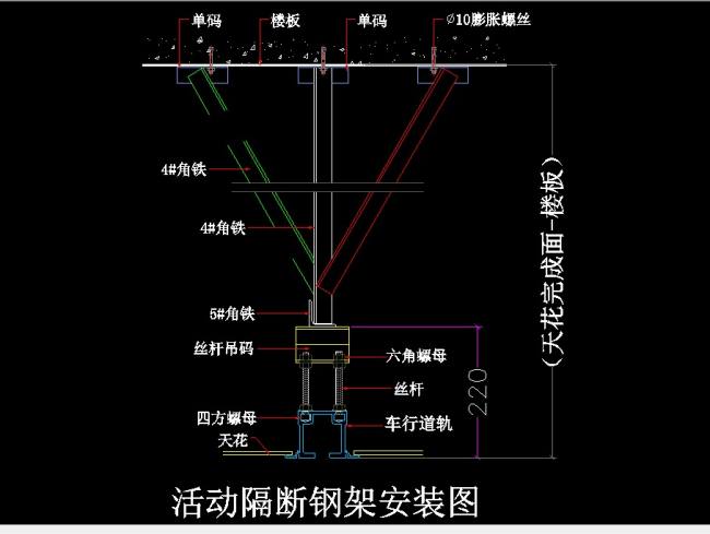
产品信息:活动隔断厚度为65㎜,有单片式和双片式之分,可开设门中门,每片屏风轨
道最大负载为225㎏,顶底伸缩范围为23㎜。
产品性质:磁条垂直嵌接,密封,隔音性能较好。
其中:基准面是软包,其隔音系数RW=36dB,密度为30㎏/㎡;
基准面是中纤板或夹板,其隔音系数RW=32dB,密度为24㎏/㎡;
基准面是三聚氰胺,其隔音系数RW=26dB,密度为25㎏/㎡;
产品用途:适用隔断高度在2米——4米之间
二,沃欧隔断80型
产品信息:隔断厚度为80㎜,有单片式和双片式之分,可开设门中门,每片屏风轨道最
大负载为450KG,底顶伸缩范围23㎜。
产品性质:两件屏风连接处装有磁条,靠近时会自行吸引,具有良好的密封,隔音性能
。
其中:基准面是软包,其隔音系数RW=50dB,密度为40㎏/㎡;
基准面是中纤板,其隔音系数RW=40dB,密度为32㎏/㎡;
基准面是三聚氰胺,其隔音系数RW=35dB,密度为33㎏/㎡;
产品用途:适用隔断高度在2米——5米之间
三,沃欧隔断100型
产品信息:隔断厚度为100㎜,有单片式和双片式之分,可开设U型和L型门中门,每片屏
风轨道最大负载为650㎏,顶底伸缩范围为22.5㎜。
产品性质:
其中:基准面是彩钢板,基隔音系数RW=53dB,密度为45㎏/㎡;
基准面是中纤板或夹板,其隔音系数RW=50dB,密度为38㎏/㎡;
基准面是玻镁板,其隔音系数RW=43dB,密度为41㎏/㎡;
产品用途:适用隔断高度在3米——9米之间
四,沃欧隔断超高型
产品信息:隔断厚度为100㎜,每片屏风轨道最大负载为3200KG ,底顶伸缩范围
30mm.
产品性质:两件屏风连接处装有磁条,靠近时会自行吸引,具有极好的密封,隔音
性能。
其中:基准面是彩钢板,其隔音系数RW=53dB,密度为51㎏/㎡;
基准面是中纤板或夹板,其隔音系数RW=50dB,密度为51㎏/㎡;
产品 用途:适用隔断高度在6米——17米之间